

เปิดจองแล้ว
บ้านลินสิริ บ้านค้อ กุดลาด
บ้านเดี่ยว 3 ห้องนอน 2 ห้องน้ำ สไตล์มินิมอลเอิร์ทโทน (Minimal Earth tone) ที่เราออกแบบให้ลงตัว เพื่อให้คุณได้ชีวิตที่ลงตัว ในทำเลธรรมชาติ เงียบสงบ แต่ยังไกล้เมือง

Our milestones
บ้านมินิมอลเอิร์ทโทน (Minimal Earth tone) ที่เราออกแบบให้ลงตัว เพื่อให้คุณได้ชีวิตที่ลงตัว ในทำเลธรรมชาติ เงียบสงบ แต่ยังไกล้เมือง
พร้อม 1
ฟรีโอน ฟรีจดจำนอง 100%
พร้อม 4
แถมถังน้ำ 1,000 ลิตร และปั๊มน้ำแรงดันฯ
พร้อม 2
แถมแอร์ 3 เครื่อง
พร้อม 5
ฟรีมิเตอร์น้ำ มิเตอร์ไฟฟ้า
พร้อม 3
แถมเครื่องทำน้ำอุ่น 2 เครื่อง
Design
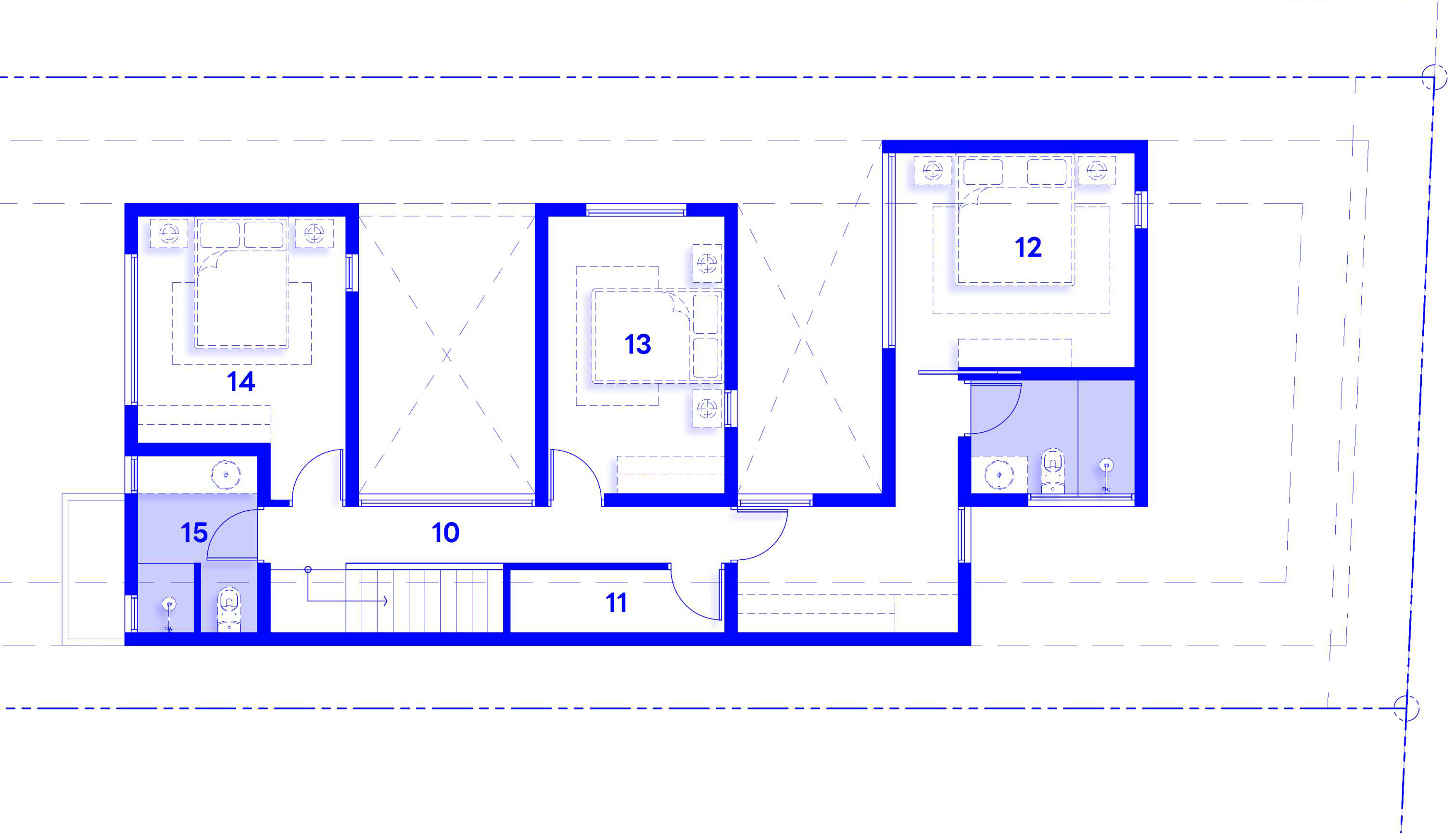
บ้านเดี่ยว 3 ห้องนอน 2 ห้องน้ำ
(ขนาด 106 ตารางเมตร)
พื้นที่ขนาด 52 - 62 ตารางวา
เริ่มต้น 2.XX ล้านบาท*

เพิ่มพื้นที่ความสุขด้วย
เพดานสูง โล่ง ปลอดโปร่ง
มีพื้นที่ใช้สอยเพียงพอ ไม่อึดอัด

การออกแบบที่ลงตัว
3 ห้องนอน 2 ห้องน้ำ 1 ห้องครัว 1 ห้องโถง 2 ที่จอดรถ
สร้างเพื่อความลงตัวของครอบครัว


จัดเต็มของแถม
ทำไมต้องเลือกบ้านลินสิริ
เริ่มต้น | บ้านสร้างเสร็จ พร้อมโอน บนพื้นที่ 52-62 ตารางวา พื้นที่ใช้สอย 106 ตารางเมตร ตัวบ้านก่อสร้างด้วยวัสดุมาตรฐาน หลังคา SCG แผ่นเรียบ ปูกระเบื้องแกรนิตโต้ทั้งหลัง ไกล้ชุมชนและสิ่งอำนวยความสะดวก
|
2.XX | |
ล้านบาท | |
Office Hours
วันจันทร์ ถึง วันเสาร์
08:30 น. ถึง 16:30 น.
นอกเวลาทำการสามารถนัดล่วงหน้าทางโทรศัพท์ ไลน์ หรือ แจ้งทางเพจเฟซบุ๊ค
หากไม่สะดวกเข้าชมด้วยตนเองสามารถวีดีโอคอลได้
Contact Us
โครงการบ้านลินสิริ (Lyn Siri Home)
ถนนสมเด็จ หมู่ที่ 12 ตำบลกุดลาด อำเภอเมืองอุบลราชธานี จังหวัดอุบลราชธานี 34000
(082) 648-2999
lynsiri.home@outlook.com
Get Social